技术介绍
既有建筑物改造中,功能改造是最重要的,许多功能改造都涉及到原有构件快速、大幅度,也就是成倍、甚至成数倍要增加刚度和强度。现有混凝土构件粘接加固一般采用粘钢板、粘碳纤维布进行加固,只能有限提高构件的强度(提高的幅度不超过40%),且无法提高构件的刚度。在实际工程中,经常需要快速、大幅度提升结构承载力,基于此,必赢bwin线路检测中心提出了粘接型钢加大截面加固法,适用于各行各业的结构、国防工程和抢险工程等需要大幅度提高构件的强度与刚度。
粘接型钢加大截面加固法主要分为两种:
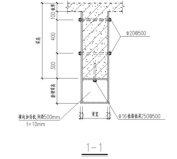
1、对于混凝土梁构件,通过粘结与锚结将型钢梁与原混凝土构件连接成整体,通过加大构件的截面,大幅度提高其承载力和刚度。如图1所示。
2、对于板构件,通过板底粘型钢改变传力途径或减小跨度进行加固,包括板底粘接型钢加固为密肋板的加法方法。如图2所示。
图1 混凝土梁粘接型钢加大截面加固
图2 混凝土板粘接型钢改变传力途径加固
- 上一篇: 湖北移动通信办公大楼加固改造工程
- 没有了


